Calle Niágara 39, locales 1 & 2
edificio Miraflores III
03189 Orihuela Costa
+34 (0) 865 619 930
[email protected] Reveny Sverige
C el liwi C, 4
Guadalmina baja
29678 Marbella
+34 (0) 865 619 930
[email protected]

Benissa

2.850.000EUR
342 m²
4 sovrum
3 Badrum
Pool
2.850.000EUR
N9313

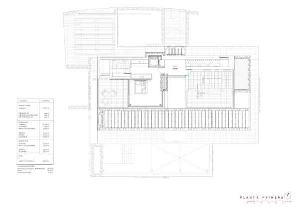
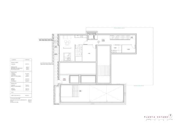
Modern villa med panoramautsikt över havet i La Fustera, Benissa Costa Denna exklusiva nybyggda villa, ritad av en känd arkitekt och byggd av en lokal byggentreprenör med mer än 20 års erfarenhet, ligger på en 800 m² stor tomt bara några steg från La Fustera-stranden. Arkitekturen blandar medelhavsvärme med modern elegans och kombinerar natursten, trä och mjuka neutrala toner som smälter in perfekt i kustlandskapet. Med en total byggnadsyta på 716 m² fördelat på tre våningar – källare, bottenvåning och första våningen – erbjuder villan en perfekt balans mellan funktionalitet, design och komfort. Källarplan Den nedre våningen på 105,97 m² är utformad för både praktiska ändamål och fritid. Den innehåller ett fullt utrustat gym, tvättstuga och tekniska utrymmen, med möjlighet att anpassa ytterligare utrymmen som vinkällare, biograf eller multifunktionsrum. På denna våning finns också poolens filtreringssystem och vattentankar, vilket säkerställer en effektiv hantering av alla tekniska installationer. Bottenvåningen Huvudvåningen, med 137,93 m², har en ljus öppen planlösning som fångar essensen av medelhavslivet. Det rymliga vardagsrummet, matplatsen och köket öppnar sig genom stora fönster från golv till tak mot huvudterrassen och infinitypoolen, med en fantastisk panoramautsikt över havet som präglar karaktären hos detta hem. Två dubbelrum, ett komplett badrum och en gästtoalett kompletterar denna våning och erbjuder komfort och funktionalitet. Utomhus skuggar en träpergola utomhusloungen och matplatsen, omgiven av lummiga trädgårdar, solterrasser och en 59,40 m² stor infinitypool som visuellt smälter samman med havet. Första våningen Den övre våningen, med 70,19 m², är reserverad för mastersviten – en privat oas med klädkammare, eget badrum och en stor privat terrass med fantastisk utsikt över Medelhavet. Ett andra sovrum eller kontor kompletterar denna våning, som också ger tillgång till ett 25,02 m² stort solarium, perfekt för att koppla av i solen och njuta av den lugna omgivningen. Exteriör och läge Denna fastighet ligger på en lugn bostadsgata omgiven av moderna villor och har ett exceptionellt läge bara 3 minuters promenad från La Fustera-stranden (150 m), Mandala Beach Bar & Restaurant och viktiga bekvämligheter som stormarknader och lokala tjänster. Denna villa är designad med tonvikt på ljus, utrymme och ett sömlöst boende inomhus och utomhus, och förkroppsligar den moderna medelhavslivsstilen – elegant, avslappnad och i perfekt harmoni med sin spektakulära panoramautsikt över havet. Säkra din drömvilla i La Fustera, Benissa Costa, och omfamna den ultimata medelhavslivsstilen med hisnande havsutsikt och oöverträffad komfort.

  • Private Pool
  • Garden
  • Gated
  • Terrace: 157 Msq.
  • Solarium: Yes
  • Parking - Space
  • Number of Parking Spaces: 2
  • Beach: 150 Meters
  • Views: Sea
  • Near Trees
  • Near Schools
  • Near Commercial Center
  • Near Bus Route
  • Location: Coastal, Urbanisation
  • Useable Build Space: 290 Msq.
  • Storage / Trastero
  • Under-Build / Basement
  • Gym
  • Double Bedrooms: 4
  • Toilet: 1

Intresseanmälan

Hittar du inte vad du söker?

Låt oss leta åt dig. Som medlem i vårt spekulantregister får du förhandsinformation om de bostäder vi planerar att erbjuda innan de publiceras för allmänheten. Genom att tydligt specificera dina önskemål ökar chansen att dina matchningar blir precis rätt för dig. Det kan vara den smidigaste vägen till att hitta ditt drömhem i Spanien.

Ange dina önskemål