Calle Niágara 39, locales 1 & 2
edificio Miraflores III
03189 Orihuela Costa
+34 (0) 865 619 930
[email protected] Reveny Sverige
C el liwi C, 4
Guadalmina baja
29678 Marbella
+34 (0) 865 619 930
[email protected]

Pilar de La Horadada

745.000EUR
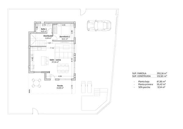
132 m²
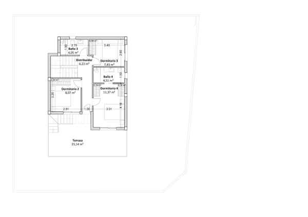
4 sovrum
3 Badrum
Pool
745.000EUR
N9278

NYBYGGD VILLA I TORRE DE LA HORADADA Nybyggd villa i bostadsområde med gemensam pool i Torre de la Horadada som ligger 800 meter från stranden. Villa har 4 sovrum, 3 badrum, kök med öppen planlösning med vardagsrumsdelen, inbyggda garderober, terrass, privat solarium, trädgård och parkeringsplats. Torre de la Horadada ligger söder om Alicante i ett vackert läge vid kusten. De vackra stränderna i Torre de la Horadada och Mil Palmeras har fin sand vacker strandpromenad. Det finns massor av restauranger, barer och butiker, även vattensporter, dykning och snorkling. Det är bra förbindelser bara 40 minuter från Alicante och Murcias Corvera flygplatser, med stora kommersiella köpcentra och flera golfbanor inom räckhåll.

  • Key Ready
  • Communal Pool
  • Garden
  • Gated
  • Terrace: 97 Msq.
  • Solarium: Yes
  • Parking - Space
  • Number of Parking Spaces: 1
  • Beach: 800 Meters
  • Near Schools
  • Near Commercial Center
  • Near Bus Route
  • Location: Urbanisation
  • Useable Build Space: 115 Msq.
  • Air Conditioning: Pre-Installed
  • Gym
  • Double Bedrooms: 4

Intresseanmälan

Hittar du inte vad du söker?

Låt oss leta åt dig. Som medlem i vårt spekulantregister får du förhandsinformation om de bostäder vi planerar att erbjuda innan de publiceras för allmänheten. Genom att tydligt specificera dina önskemål ökar chansen att dina matchningar blir precis rätt för dig. Det kan vara den smidigaste vägen till att hitta ditt drömhem i Spanien.

Ange dina önskemål