Calle Niágara 39, locales 1 & 2
edificio Miraflores III
03189 Orihuela Costa
+34 (0) 865 619 930
[email protected] Reveny Sverige
C el liwi C, 4
Guadalmina baja
29678 Marbella
+34 (0) 865 619 930
[email protected]

Pilar de La Horadada

305.000EUR
90 m²
3 sovrum
2 Badrum
Pool
305.000EUR
N8964

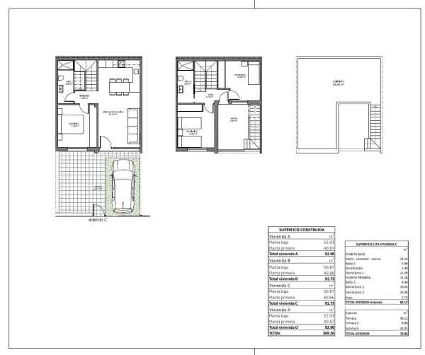
Moderna nybyggda villor med privat pool som tillval i Pilar de la Horadada Exklusivt projekt med 4 moderna bostäder Denna exklusiva kollektion av fyra nybyggda parhusvillor ligger i ett lugnt område i Pilar de la Horadada, bara några minuter från centrum och 3 km från Medelhavets stränder. Varje bostad är designad med fokus på komfort, stil och energieffektivitet och erbjuder rymliga boytor med möjlighet att lägga till en privat pool och parkering på tomten. Elegant design och utomhusliv Varje villa har tre sovrum och två badrum, genomtänkt fördelade i en ljus och öppen planlösning. En privat trädgård och en generös takterrass med förinstallation för ett utekök erbjuder perfekta utrymmen för att njuta av Costa Blancas sol året om. Den privata poolen (tillval) ger extra komfort för avkoppling eller umgänge. Högkvalitativa detaljer och ytbehandlingar Husen är utrustade med moderna material och ytbehandlingar för att säkerställa varaktig kvalitet och bekvämlighet: Pansrad ytterdörr för extra säkerhet Ytterstommar i PVC med värmeisolerande skikt för förbättrad isolering Fullt möblerade badrum med duschväggar Golvvärme i badrummen för extra komfort Aerotermiskt system för varmvatten Förinstallerad luftkonditionering i hela huset Bo i Pilar de la Horadada: En stad full av charm Pilar de la Horadada är en traditionell spansk stad känd för sin vänliga atmosfär och utmärkta infrastruktur. Staden erbjuder allt du behöver för det dagliga livet, inklusive stormarknader, restauranger, butiker och charmiga torg. En kort promenad tar dig till det livliga centrumet, där du kan njuta av lokala tapas, kulturella evenemang och veckomarknader. Nära stränder, golf och service Stränderna Torre de la Horadada och Mil Palmeras: 3 km (5 minuter) La Zenia Boulevard shoppingcenter: 15 km (15 minuter) Lo Romero Golf: 7 km (10 minuter) Corvera Murcia flygplats: 40 km (40 minuter) Alicante internationella flygplats: 55 km (55 minuter) Säkra din fastighet på Costa Blanca nu Oavsett om du letar efter en permanentbostad, en semesterbostad eller en investeringsfastighet, erbjuder dessa nya bostäder i Pilar de la Horadada ett oslagbart läge, moderna bekvämligheter och en medelhavsinspirerad livsstil. Kontakta oss idag för mer information eller för att boka ett besök.

  • Garden
  • Gated
  • Terrace: 78 Msq.
  • Solarium: Yes
  • Parking - Space
  • Number of Parking Spaces: 1
  • Beach: 3000 Meters
  • Near Schools
  • Near Commercial Center
  • Near Bus Route
  • Location: Coastal
  • Useable Build Space: 82 Msq.
  • Air Conditioning: Pre-Installed
  • Double Bedrooms: 3

Intresseanmälan

Hittar du inte vad du söker?

Låt oss leta åt dig. Som medlem i vårt spekulantregister får du förhandsinformation om de bostäder vi planerar att erbjuda innan de publiceras för allmänheten. Genom att tydligt specificera dina önskemål ökar chansen att dina matchningar blir precis rätt för dig. Det kan vara den smidigaste vägen till att hitta ditt drömhem i Spanien.

Ange dina önskemål