Calle Niágara 39, locales 1 & 2
edificio Miraflores III
03189 Orihuela Costa
+34 (0) 865 619 930
[email protected] Reveny Sverige
C el liwi C, 4
Guadalmina baja
29678 Marbella
+34 (0) 865 619 930
[email protected]

Pilar de La Horadada

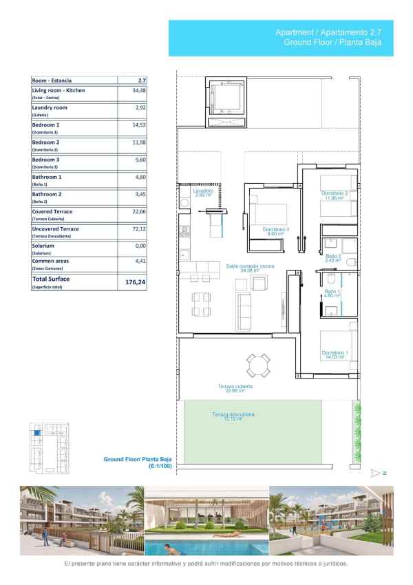
419.900EUR
104 m²
3 sovrum
2 Badrum
Pool
419.900EUR
N8808

Lyxiga turistlägenheter bara 150 meter från Las Higuericas Beach - Torre de la Horadada Exklusiv nyproduktion med hyreslicens inkluderad Välkommen till ett nytt bostadsområde i Torre de la Horadada, bara 150 meter från den gyllene sanden på Las Higuericas Beach. Detta moderna projekt erbjuder 48 fullt möblerade turistlägenheter, alla levererade med en korttidsuthyrningslicens, vilket gör det till en idealisk investering för semesteruthyrning eller personlig njutning. Välj mellan 42 enheter med 3 sovrum och 2 badrum eller 6 enheter med 2 sovrum och 2 badrum, alla genomtänkt utformade för att maximera komfort, stil och funktionalitet. Layouter designade för kustnära boende Varje fastighet är skräddarsydd för att möta olika livsstilsbehov: Lägenheterna på bottenvåningen har rymliga privata trädgårdar med utsikt över de gemensamma utrymmena. Lägenheterna på första våningen har stora terrasser, vissa med delvis havsutsikt. Takvåningarna har privata solarier med havsutsikt och utomhuskök, pergolaer, jacuzzis och konstgräs. Alla bostäder har en privat underjordisk parkeringsplats och ett förråd, och den första fasen beräknas vara färdigställd sommaren 2026. Fullt utrustade och inflyttningsklara Dessa hem är fullt utrustade för omedelbar inflyttning, inklusive: Kompletta möbler och inredning i medelhavsstil Fullt utrustade kök med vitvaror Oberoende tvättstugor Golvvärme i hela Kanaliserad luftkonditionering (varm / kall) Sängkläder och hushållsartiklar Fönster har elektriska fönsterluckor och Climasun termisk-akustiskt glas, medan energieffektiva aerotermiska system ger varmvatten. Gemensamma områden i semesterstil för njutning året runt Projektet omfattar omfattande gemensamma bekvämligheter, t.ex: Utomhuspool för vuxna och barn Lekplats Anlagda grönområden Wellnessavdelning i källaren med uppvärmd inomhuspool, massagestrålar, bastu och ett fullt utrustat gym Varje detalj har utformats för att ge boende och gäster en avkopplande och lyxig Medelhavsupplevelse. Förstklassigt läge med enkel tillgång till de bästa attraktionerna Detta oslagbara läge erbjuder närhet till det bästa på Costa Blanca och Costa Cálida: Las Higuericas Beach - 150 m Lo Romero Golf Course - 10 km Dos Mares Shopping Center - 11 km Port of San Pedro del Pinatar - 8 km Murcia Airport - 30 km Alicante Airport - 65 km Säkra din kustinvestering idag Om du letar efter ett fritidshus eller en hyresinvestering är det här din möjlighet att äga en premiumfastighet nära stranden i ett av de mest eftertraktade områdena. Kontakta oss nu för att lära dig mer eller planera ditt besök i Torre de la Horadada!

  • Licensed Tourist Property
  • Elevator/Lift
  • Communal Pool
  • Garden
  • Gated
  • Terrace: 22 Msq.
  • Jacuzzi
  • Parking - Space
  • Number of Parking Spaces: 1
  • Beach: 150 Meters
  • Furnished
  • Near Trees
  • Near Schools
  • Near Childrens Parks
  • Near Commercial Center
  • Near Bus Route
  • Location: Coastal, Urbanisation
  • Useable Build Space: 90 Msq.
  • Heating: Yes, Air Conditioning: Yes
  • Gym
  • Double Bedrooms: 3

Intresseanmälan

Hittar du inte vad du söker?

Låt oss leta åt dig. Som medlem i vårt spekulantregister får du förhandsinformation om de bostäder vi planerar att erbjuda innan de publiceras för allmänheten. Genom att tydligt specificera dina önskemål ökar chansen att dina matchningar blir precis rätt för dig. Det kan vara den smidigaste vägen till att hitta ditt drömhem i Spanien.

Ange dina önskemål