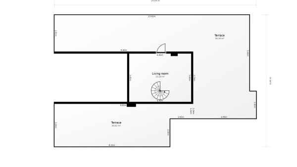
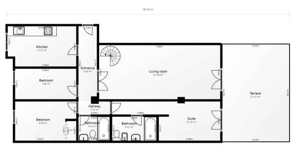
A stunningly spacious 3 bedroom, 2 bathroom, duplex penthouse within walking distance of all the amenities of Benalmadena Pueblo. The property commands amazing, panoramic views from Sierra Nevada and across the Mediterranean to Africa on a clear day. The property is presented in immaculate condition benefitting from terraces on both levels, 25m2 accessed from the lounge and master bedroom and a further 76m2 accessed from the mezzanine floor above the lounge. The apartment also has a garage parking space and a spacious storeroom.
Penthouse, Benalmadena, Costa del Sol.
3 Bedrooms, 2 Bathrooms, Built 126 m², Terrace 101 m².
Setting : Close To Shops, Close To Schools, Urbanisation.
Orientation : South.
Condition : Excellent.
Pool : Communal.
Climate Control : Air Conditioning.
Views : Sea, Mountain, Panoramic, Garden.
Features : Lift, Fitted Wardrobes, Near Transport, Private Terrace, WiFi, Storage Room, Ensuite Bathroom, Double Glazing, Near Church.
Furniture : Optional.
Kitchen : Fully Fitted.
Garden : Communal.
Security : Gated Complex, Entry Phone.
Parking : Garage, Private.
Utilities : Electricity.
Category : Luxury, Resale.
Expenses and taxes not included in the price. The purchase entails taxes and formalization costs for the buyer. As a guideline, it is reported that in second transfers the ITP in general in Andalusia is 7%, and there may be other tax rates depending on the personal circumstances of the buyer or other circumstances provided for by law. Taxable base of the tax is the higher of the purchase price, the appraisal or the cadastral reference value. As for the notary and registry expenses, if applicable, they usually range approx; between 1.5% and 3% (variable tariffs depending on price, number of copies and complexity). The buyer chooses a notary. If the buyer needs a mortgage: appraisal, conditions and bank costs will be according to the entity chosen by the buyer, as well as the management costs, and any other expenses inherent to the formalisation of the sale that legally correspond to the buyer, unless expressly agreed otherwise with the seller.
Penthouse, Benalmadena, Costa del Sol.
3 Bedrooms, 2 Bathrooms, Built 126 m², Terrace 101 m².
Setting : Close To Shops, Close To Schools, Urbanisation.
Orientation : South.
Condition : Excellent.
Pool : Communal.
Climate Control : Air Conditioning.
Views : Sea, Mountain, Panoramic, Garden.
Features : Lift, Fitted Wardrobes, Near Transport, Private Terrace, WiFi, Storage Room, Ensuite Bathroom, Double Glazing, Near Church.
Furniture : Optional.
Kitchen : Fully Fitted.
Garden : Communal.
Security : Gated Complex, Entry Phone.
Parking : Garage, Private.
Utilities : Electricity.
Category : Luxury, Resale.
Expenses and taxes not included in the price. The purchase entails taxes and formalization costs for the buyer. As a guideline, it is reported that in second transfers the ITP in general in Andalusia is 7%, and there may be other tax rates depending on the personal circumstances of the buyer or other circumstances provided for by law. Taxable base of the tax is the higher of the purchase price, the appraisal or the cadastral reference value. As for the notary and registry expenses, if applicable, they usually range approx; between 1.5% and 3% (variable tariffs depending on price, number of copies and complexity). The buyer chooses a notary. If the buyer needs a mortgage: appraisal, conditions and bank costs will be according to the entity chosen by the buyer, as well as the management costs, and any other expenses inherent to the formalisation of the sale that legally correspond to the buyer, unless expressly agreed otherwise with the seller.
- Close To Shops
- Close To Schools
- Urbanisation
- Lift
- Fitted Wardrobes
- Near Transport
- Private Terrace
- WiFi
- Storage Room
- Ensuite Bathroom
- Double Glazing
- Near Church
- Optional
- Gated Complex
- Entry Phone
* For privacy reasons, the seller has not indicated the exact address.


Reveny Sverige